PR Constructions

Simili

The project “Simili” is being developed in Agios Dimitrios, an area where our company has completed several notable projects. It consists of a complex of two buildings, comprising a total of 25 apartments with energy class A+.
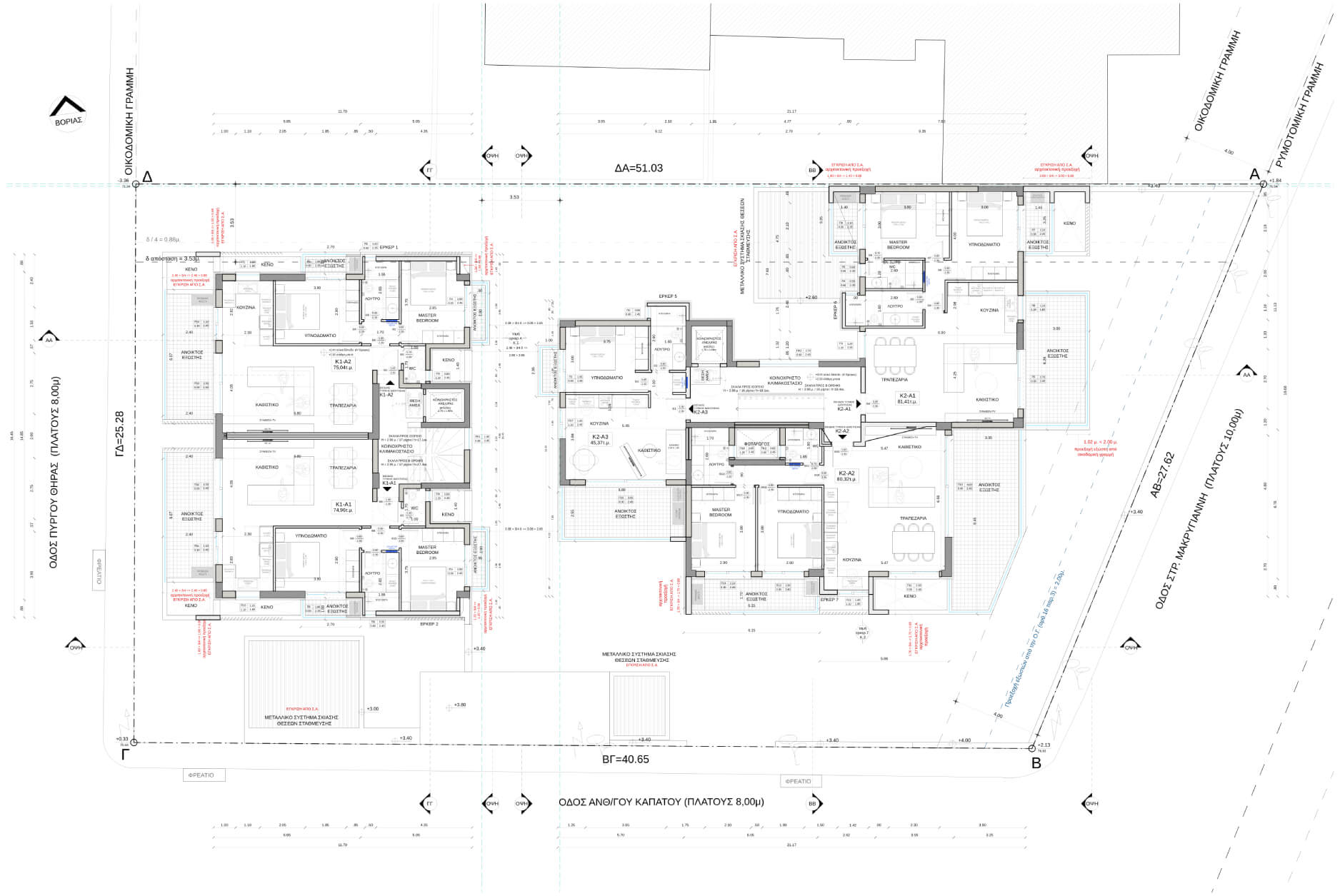
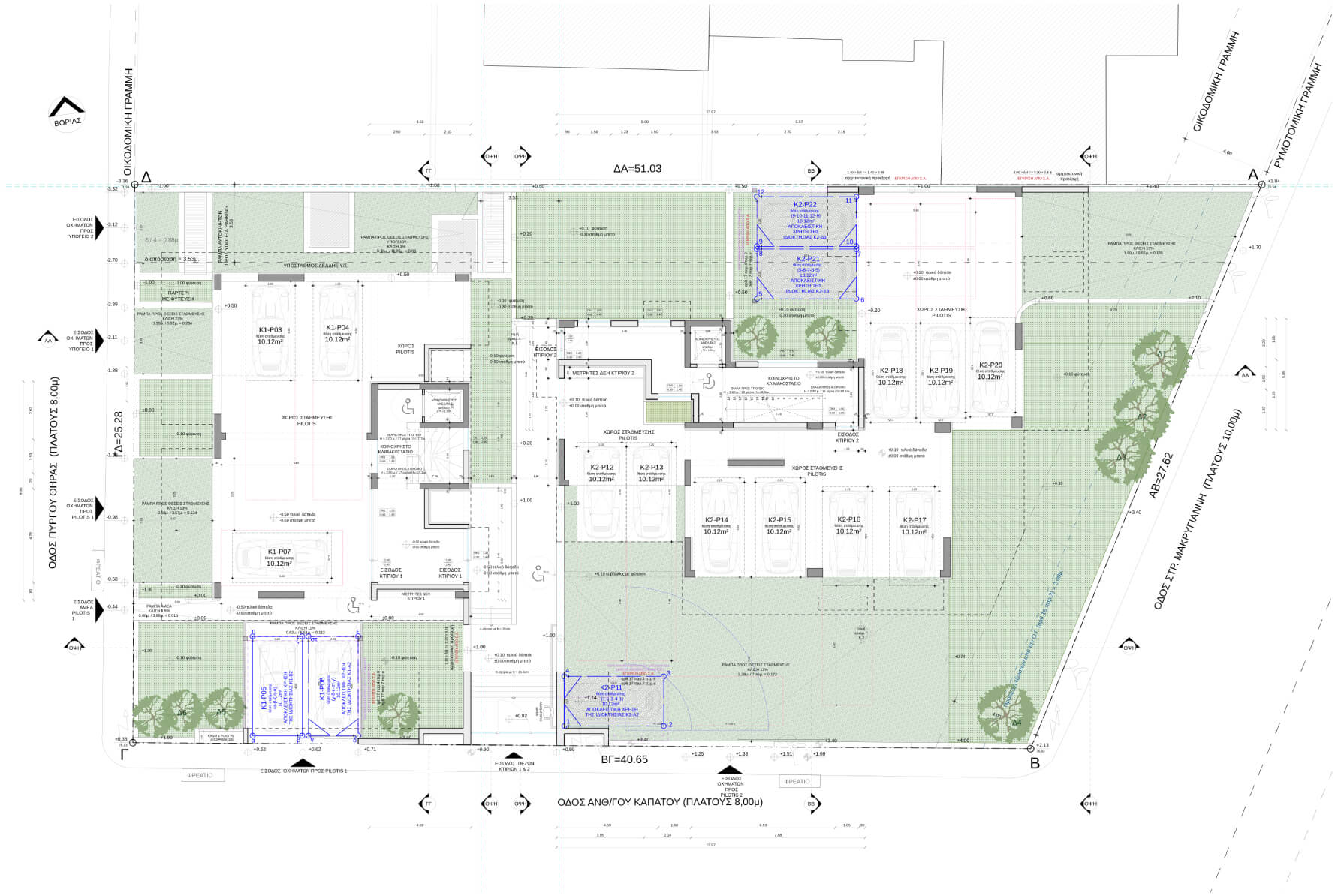
The complex is developed over six levels, with balconies and private terraces. It includes a basement with parking spaces and storage units, a ground floor with pilotis, and open areas for vehicles and landscaping. The plot on which it is being constructed is three-sided, allows cross-ventilation, and is located between Str. Makrygianni, Anthypopsmn. Kapatos, and Pyrgos Thiras streets. The project study was developed with a primary focus on designing a bioclimatic residential complex to meet the needs of modern families. Emphasis was placed on functionality, aesthetics, and minimizing the overall energy footprint of the building as well as each individual unit.
25Apartments
Apartment K1A1 – 75 sq.m., 2 bedrooms, bathroom & WC, parking space under pilotis, basement storage
Apartment K1A2 – 75 sq.m., 2 bedrooms, bathroom & WC, parking space under pilotis, basement storage
Apartment K2A1 – 81 sq.m., 2 bedrooms, bathroom & WC, parking space under pilotis, basement storage
Apartment K2A2 – 80 sq.m., 2 bedrooms, bathroom & WC, parking space under pilotis, basement storage
Apartment K2A3 – 45 sq.m., 1 bedroom, 1 bathroom, parking space under pilotis, basement storage
Apartment K1B1 – 75 sq.m., 2 bedrooms, bathroom & WC, parking space under pilotis, basement storage
Apartment K1B2 – 75 sq.m., 2 bedrooms, bathroom & WC, parking space under pilotis, basement storage
Apartment K2B1 – 81 sq.m., 2 bedrooms, bathroom & WC, parking space under pilotis, basement storage
Apartment K2B2 – 80 sq.m., 2 bedrooms, bathroom & WC, parking space under pilotis, basement storage
Apartment K2B3 – 45 sq.m., 1 bedroom, 1 bathroom, parking space under pilotis, basement storage
Apartment K1Γ1 – 75 sq.m., 2 bedrooms, bathroom & WC, basement parking space, basement storage
Apartment K1Γ2 – 75 sq.m., 2 bedrooms, bathroom & WC, basement parking space, basement storage
Apartment K2Γ1 – 81 sq.m., 2 bedrooms, bathroom & WC, parking space under pilotis, basement storage
Apartment K2Γ2 – 80 sq.m., 2 bedrooms, bathroom & WC, parking space under pilotis, basement storage
Apartment K2Γ3 – 45 sq.m., 1 bedroom, 1 bathroom, parking space under pilotis, basement storage
Apartment Κ1Δ1 – 75 sq.m., 2 bedrooms, bathroom & WC, parking space under pilotis, basement storage
Apartment Κ1Δ2 – 75 sq.m., 2 bedrooms, bathroom & WC, parking space under pilotis, basement storage
Apartment Κ2Δ1 – 81 sq.m., 2 bedrooms, bathroom & WC, basement parking space, basement storage
Apartment Κ2Δ2 – 80 sq.m., 2 bedrooms, bathroom & WC, basement parking space, basement storage
Apartment Κ2Δ3 – 45 sq.m., 1 bedroom, 1 bathroom, parking space under pilotis, basement storage
Apartment Κ2Ε1 – 81 sq.m., 2 bedrooms, bathroom & WC, basement parking space, basement storage
Apartment Κ2Ε2 – 80 sq.m., 2 bedrooms, bathroom & WC, basement parking space, basement storage
Apartment Κ2Ε3 – 45 sq.m., 1 bedroom, 1 bathroom, parking space under pilotis, basement storage
Apartment Κ2ΣΤ1 – 81 sq.m., 2 bedrooms, bathroom & WC, basement parking space, basement storage
Apartment Κ2ΣΤ2 – 82 sq.m., 2 bedrooms, bathroom & WC, basement parking space, basement storage, exclusive use of rooftop space, 57 sq.m.

Construction

  • Concrete work using branded and certified products.
  • External thermal insulation (building envelope) with a thickness of 10 cm across the entire building.
  • Independent heating with individual natural gas boilers and an automatic air-conditioning system (including both outdoor and indoor units) for maximum energy savings.
  • Dual-energy solar water heater.
  • Energy-efficient aluminum frames with thermally insulated glass panels, designed with high aesthetic standards.
  • Electric shutters and insect screens on all windows.
  • Radial plumbing and heating system.
  • Radial electrical installation with independent circuits for each appliance (fuses in the distribution board).
  • Alarm system wiring with remote management capability (device not included).
  • Armored security door.
  • Basement storage units with electricity supply from the apartment.
  • Electricity provision for each parking space for future installation of car chargers.
Floorplans