PR Constructions

Saffron

Project “Saffron” is being built in the area of Ano Ilioupoli, on a plot on Karea Street (7).
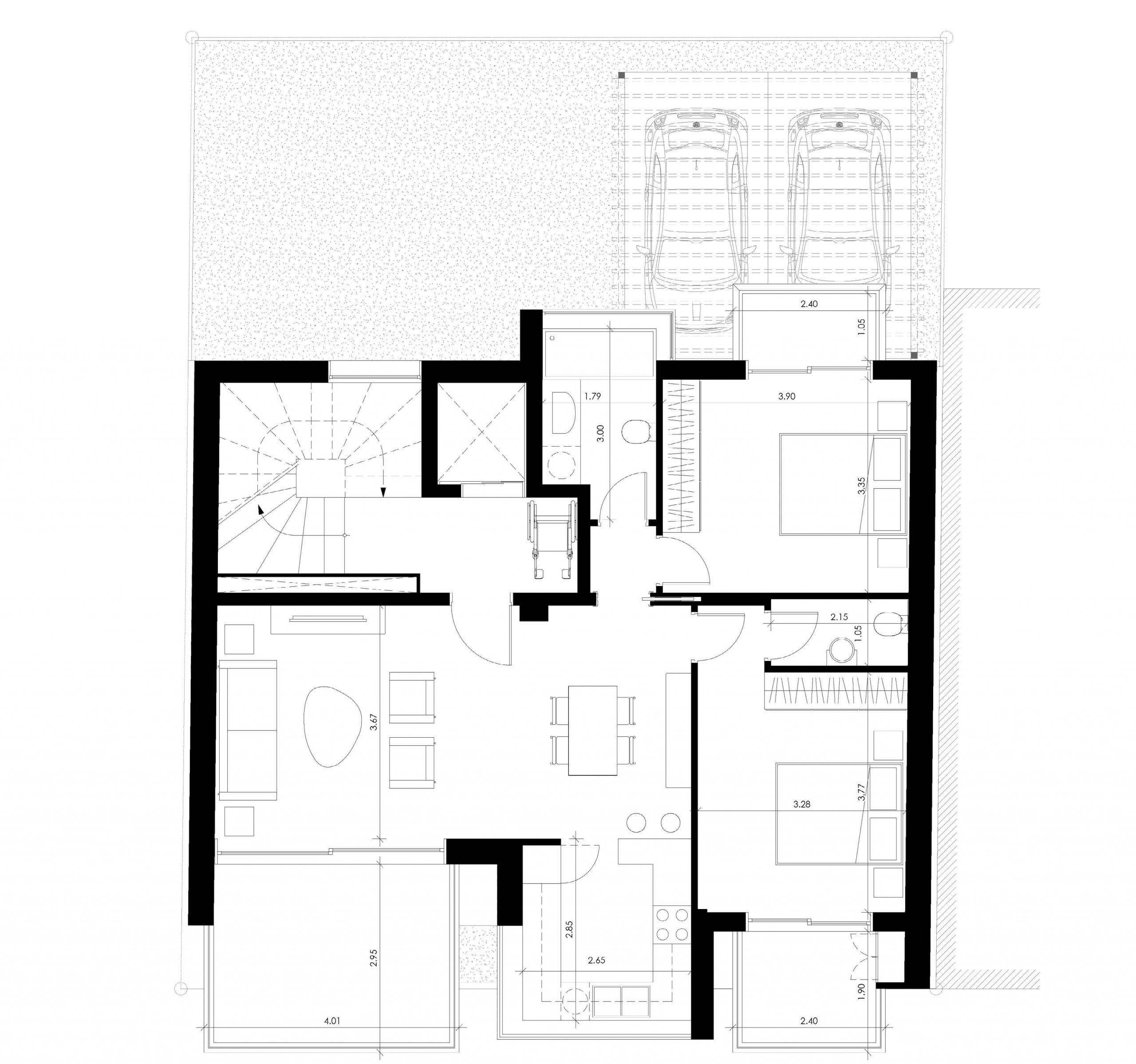
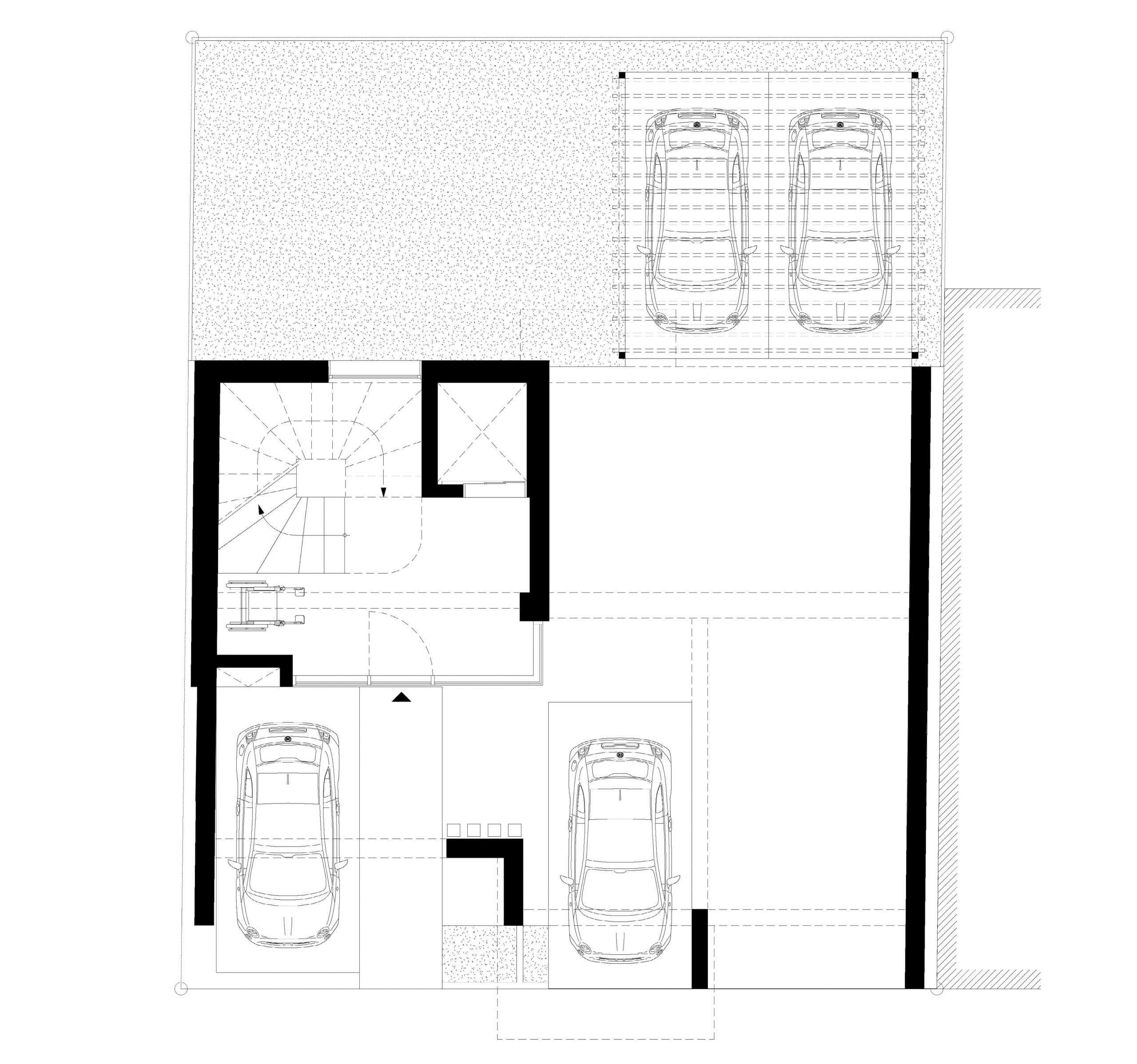
The apartment building is located near the central square of Ano Ilioupoli (included in the planning for future METRO extensions). It consists of 4 apartments, one on each floor with the last including the fourth floor and the attic.
4Apartments
Apartment A1- 85.97 sq.m.
Apartment B1- 85.97 sq.m.
Apartment C1- 85.97 sq.m.
Apartment D1- 106.11 sq.m.
Virtual Tour
SAFFRON

Construction

  • Energy class A.
  • Concreting with branded and certified products (ET BETON, concrete irons and SIDENOR cages).
  • Exterior thermal facade (shell) 10 cm thick throughout the building.
  • Autonomous heating using an individual heat pump for maximum energy savings.
  • “Europa” aluminum energy frames with thermal break glazing.
  • Solid oak floors 22mm with ecological varnishes.
  • Electric shutters and screens on all windows.
  • Built-in Geberit cisterns with hanging basins.
  • Bathroom and WC, with built-in batteries Grohe, Keller.
  • Radial water supply and heating system.
  • Electrical radial installation with independent leads for each device (fuses in the panel).
  • Dual energy solar water heater.
  • Remote management alarm wiring (device not included).
  • Armored door and interior doors of apartments from Golden Door.
  • Basement storage with electricity supply from the apartment.
  • High quality Italian kitchen furniture of ARREDO3.
Design Details
Floorplans
Preview